Hitachi Wire Diagram Kg K200 Hitachi Sn 2099 Wheeled Komatsu
Hitachi hydraulic excavator ex2600e-6 ttkbb-en-00 electrical circuit. Hitachi hybrid excavator zh210lc-5b electrical circuit diagram ttdcs-en. Hitachi partmanual
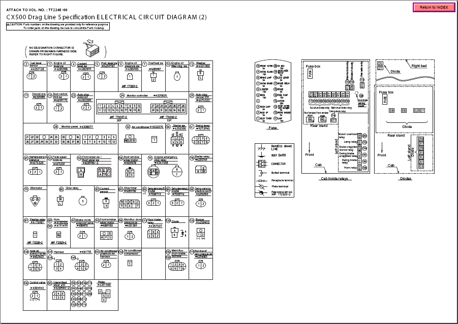
hitachi wire diagram kg k200
Download PDF
Excavator manual partmanual


Hitachi hydraulic excavator ex2600e-6 ttkbb-en-00 electrical circuit. Hitachi hydraulic excavator ex2600e-6 ttkbb-en-00 electrical circuit. Excavator manual partmanual. Hitachi hydraulic crawler cranes service and workshop manuals, hitachi
Hitachi & Kobelco Heavy Machine Full Service Manuals [New Updated
Tweet
Wiring Diagram For Hitachi Excavator - Home Wiring Diagram
Hitachi Hydraulic Crawler Cranes Service and Workshop Manuals, Hitachi
Hitachi Hydraulic Excavator EX5500-5 Electrical Circuit Diagram TT18BE

Nenhum comentário:
Postar um comentário